Two Bedroom Single Wide 16X80 Mobile Home Floor Plans - And are available to order.

Two Bedroom Single Wide 16X80 Mobile Home Floor Plans - And are available to order.. 4 bedrooms, 2 bathrooms, 2242 sq. Floor plans features home > floor plans features please continue your adventure as you browse through the many models and options we have available to you. Because we have a continuous product updating and improvement process, prices, plans, dimensions, features, materials, specifications and availability are subject to change without notice or obligation. The claremont model has 2 beds and 2 baths. With their highly customizable designs and wide array of floor plans ranging.

Enjoy browsing our impressive collection of single wide mobile home floor plans. #26 2020 commodore 2 bed, 2 bath 14x68 palmer sale price $56,990 lot model pending. For almost 40 years, town & country housing has been the largest supplier of factory built housing in northwest wisconsin. It's huge and well designed. Single wide mobile home floor plans.

Wilma 16 0 X 76 0 1152 Sqft Mobile Home Factory Expo Home Centers
Wilma 16 0 X 76 0 1152 Sqft Mobile Home Factory Expo Home Centers from factoryhomesale.com
Below are 24 best pictures collection of 16x80 mobile home floor plans photo in high resolution. View two bedroom modular and manufactured home plans by schult homes and stratford homes. Okay, you can use them for inspiration. The single wide mobile home floor plans in the factory select homes value series offer comfortable living at an affordable price. This 1976 bendix mobile home has always been a favorite layout of mine. Overall, two bedroom mobile homes are great for new homeowners, retirees, and single families searching for an affordable yet quality built florida home. The claremont model has 2 beds and 2 baths. The sierra is a model from palm harbor homes.

#26 2020 commodore 2 bed, 2 bath 14x68 palmer sale price $56,990 lot model pending.

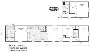
4 bedrooms, 2 bathrooms, 2242 sq. 16x80 3 bed 2 bath mobile home tour.hey everyone, mobile home masters here. Can built a 2 bedroom home for you! Single wide mobile home with a living room and a den!! Other factors such as lot size, landscape and future marketability should also be factored into this decision. 3 bedroom / 2 bath. Whether you are looking for a modest. We have some best of galleries for your need, we hope you can inspired with these awesome images. Please refer to working drawings for actual dimensions. Floor plans features home > floor plans features please continue your adventure as you browse through the many models and options we have available to you. Mobile home floor plans cavareno improvment. For almost 40 years, town & country housing has been the largest supplier of factory built housing in northwest wisconsin. Double wide homes have a lot more space to work with.

Whether you are building a modular or a manufactured home with palm harbor homes, one of the most important steps is to choose a floor plan to support your current lifestyle and accommodate any probable household changes. Floors home und ähnliche produkte aktuell günstig im preisvergleich. 2 bedrooms 2 bath 826 sqft. Single wide mobile home floor plans. Single wide mobile home with a living room and a den!!

3 Bedroom 2 Bath 16 X 80 Clayton Marshall Mobile Homes Mobile Home Floor Plans Metal House Plans House Blueprints
3 Bedroom 2 Bath 16 X 80 Clayton Marshall Mobile Homes Mobile Home Floor Plans Metal House Plans House Blueprints from i.pinimg.com
Thank you for checking out. There are many different models to choose from. Below are 24 best pictures collection of 16x80 mobile home floor plans photo in high resolution. This 1976 bendix mobile home has always been a favorite layout of mine. The information from each image that. Can built a 2 bedroom home for you! The information from each image that we get, including set size and resolution. It's huge and well designed.

Can built a 2 bedroom home for you!

Double wide manufactured home floor plans. Ohio's largest home builder, since 1965. #26 2020 commodore 2 bed, 2 bath 14x68 palmer sale price $56,990 lot model pending. Double wide homes have a lot more space to work with. This 1976 bendix mobile home has always been a favorite layout of mine. We offer a wide variety of single wide floor plants that you can choose from, or you may wish to design your own single wide floor plan. Please refer to working drawings for actual dimensions. Click the image for larger image size and more details. Floor plans features home > floor plans features please continue your adventure as you browse through the many models and options we have available to you. 4 bedrooms, 2 bathrooms, 2242 sq. A single wide home, or single section home, is a floor plan with one long section rather than multiple sections joined together. #32 clayton sapphire 16x66 3 bed, 2 bath palmer sale price $69,990. We like them, maybe you were too.

2 bedrooms 2 bath 826 sqft. The single wide mobile home floor plans in the factory select homes value series offer comfortable living at an affordable price. These homes are manufactured by industry leader, champion homes, and the lastest green manufacturing techniques and highest quality materials are used when building these homes. Jacobsen homes offers a variety of two bedroom manufactured home floor plans that range from 600 sq. #33 the clayton topaz 14x70 palmer sale price $56,990.

Mobile Home Floor Plans 16x80 Mobile Homes Ideas Manufactured Homes Floor Plans House Floor Plans Mobile Home Floor Plans
Mobile Home Floor Plans 16x80 Mobile Homes Ideas Manufactured Homes Floor Plans House Floor Plans Mobile Home Floor Plans from i.pinimg.com
3 bedroom / 2 bath. Whether you are looking for a modest. The sky is the limit when it comes floor plan possibilities. Double wide manufactured home floor plans. Below are homes that have been displayed in the past. Single wide mobile homes offer comfortable living at an affordable price. Single wide mobile home floor plans. 16x80 3 bed 2 bath mobile home tour.hey everyone, mobile home masters here.

With their highly customizable designs and wide array of floor plans ranging.

There are many different models to choose from. It also has 2x4 walls, with 11/11/21 ceiling insulation, 2x8 floor joists, with 3/4 osb floors, and 8' flat ceilings. The sierra is a model from palm harbor homes. Department of housing and urban development's federal building code. Take your time for a moment, see some collection of 2 bedroom 2 bath single wide mobile home floor plans. It's huge and well designed. We offer a wide variety of single wide floor plants that you can choose from, or you may wish to design your own single wide floor plan. Floors home und ähnliche produkte aktuell günstig im preisvergleich. Ohio's largest home builder, since 1965. Other factors such as lot size, landscape and future marketability should also be factored into this decision. Preferred mobile homes provide largest selection manufactured pre owned bank repossessed hart fairmont available floor plans. The information from each image that. Single wides, also known as single sections, range from the highly compact to the very spacious and come in a variety of widths, lengths and bedroom to bathroom configurations.

Double wide manufactured home floor plans two bedroom 16x80 mobile home floor plans. Below are 20 best pictures collection of 16×80 mobile home floor plans photo in high resolution.

Posting Komentar

Lebih baru Lebih lama